本节为各位新手网友介绍了迅捷CAD编辑器在CAD中旋转图形对象的操作,还不了解的朋友就跟着小编学习一下吧,希望对你们有所帮助。
迅捷CAD编辑器在CAD中旋转图形对象的操作过程
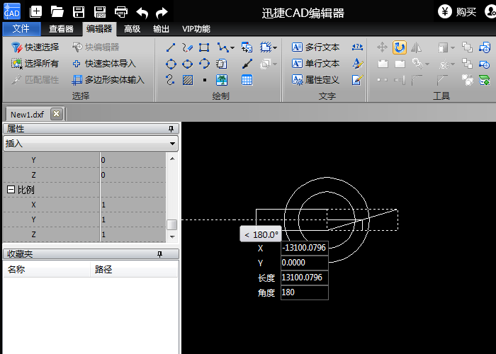
1.打开需要修改的CAD文件,在编辑区找到并选择要进行旋转的图形对象。
2.选择图形对象后右击,在弹出快捷菜单里选“旋转”命令,或点击“编辑器”菜单中的“旋转”工具。
3.接着在图中点击选择旋转点(图形旋转中心),或直接输入X、Y坐标轴,按Enter键确认。
4.然后移动鼠标进行旋转,或在角度框中输入具体的旋转角度数值(正数为逆时针方向旋转,负数为顺时针方向旋转),输入完按Enter键确认,图形旋转结束。文件编辑完成后,注意保存修改好的图纸文件。
各位小伙伴们,看完上面的精彩内容,都清楚迅捷CAD编辑器在CAD中旋转图形对象的操作过程了吧!
体育竞技
88.6MB
310.89MB
47.8MB
游戏辅助 | 4.5GB
2024-04-24
动作格斗 | 20GB
2024-04-23
角色扮演 | 3.2GB
2024-04-22
角色扮演 | 500MB
休闲益智 | 30.17MB
2024-04-18
生活服务 | 144.35MB
学习教育 | 24.26MB
2023-11-08
系统工具 | 6.78MB
体育竞技 | 88.6MB
体育竞技 | 47.8MB
体育竞技 | 310.89MB
迅捷CAD编辑器在CAD中旋转图形对象的操作过程
本节为各位新手网友介绍了迅捷CAD编辑器在CAD中旋转图形对象的操作,还不了解的朋友就跟着小编学习一下吧,希望对你们有所帮助。
迅捷CAD编辑器在CAD中旋转图形对象的操作过程
1.打开需要修改的CAD文件,在编辑区找到并选择要进行旋转的图形对象。
2.选择图形对象后右击,在弹出快捷菜单里选“旋转”命令,或点击“编辑器”菜单中的“旋转”工具。
3.接着在图中点击选择旋转点(图形旋转中心),或直接输入X、Y坐标轴,按Enter键确认。
4.然后移动鼠标进行旋转,或在角度框中输入具体的旋转角度数值(正数为逆时针方向旋转,负数为顺时针方向旋转),输入完按Enter键确认,图形旋转结束。文件编辑完成后,注意保存修改好的图纸文件。
各位小伙伴们,看完上面的精彩内容,都清楚迅捷CAD编辑器在CAD中旋转图形对象的操作过程了吧!
体育竞技
88.6MB
体育竞技
310.89MB
体育竞技
47.8MB
游戏辅助 | 4.5GB
2024-04-24
动作格斗 | 20GB
2024-04-23
角色扮演 | 3.2GB
2024-04-22
角色扮演 | 500MB
2024-04-22
休闲益智 | 30.17MB
2024-04-18
生活服务 | 144.35MB
2024-04-18
生活服务 | 144.35MB
2024-04-18
生活服务 | 144.35MB
2024-04-18
学习教育 | 24.26MB
2023-11-08
系统工具 | 6.78MB
2023-11-08
体育竞技 | 88.6MB
体育竞技 | 47.8MB
体育竞技 | 310.89MB