你们知道天正建筑2014怎样绘制建筑物顶层平面图吗?怎么样开启这项功能呢?对此感兴趣的用户可以随小编去下文看看天正建筑2014绘制建筑物顶层平面图的具体操作方法。
天正建筑2014绘制建筑物顶层平面图的操作教程
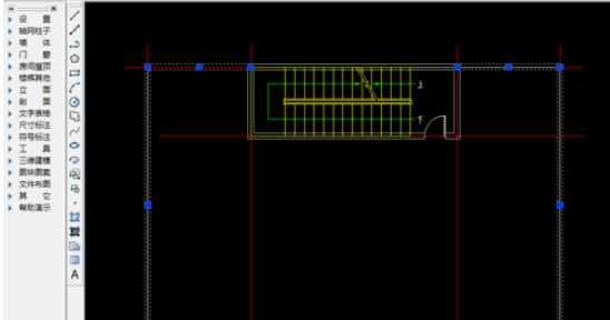
我们需要先打开天正建筑2014软件,并复制一份二层平面图,如下图所示
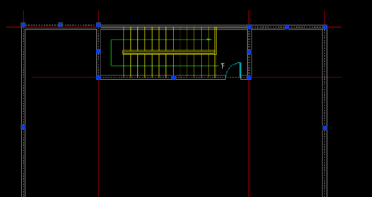
删除顶层没有的墙体、轴线、门、窗,删除完成后,如下图所示
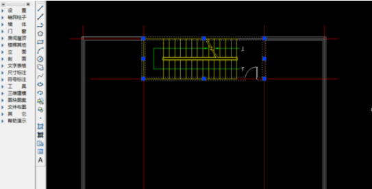
然后我们修改楼梯间的墙高,修改完成后,如下图所示
接着我们修改建筑物四周的墙体参数,修改为女儿墙,修改完成后,如下图所示
再绘制楼板,绘制完成后,如下图所示
绘制楼梯间的楼板,绘制完成后,如下图所示
在命令行输入“3DO”,点击回车键,进入“受约束的动态观察模式”,然后就可以直观的看到自己绘制的顶层平面图,如下图所示
最后我们可以改变一下“视觉样式”,看一下自己绘制的顶层平面图;在“受约束的动态观察”模式下点击鼠标右键,选择“视觉样式”,点击“真实”,如下图所示
看完了上文为你们讲述的天正建筑2014绘制建筑物顶层平面图的具体流程介绍,大家是不是都学会了啊!
体育竞技
310.89MB
47.8MB
88.6MB
游戏辅助 | 4.5GB
2024-04-24
动作格斗 | 20GB
2024-04-23
角色扮演 | 3.2GB
2024-04-22
角色扮演 | 500MB
休闲益智 | 30.17MB
2024-04-18
生活服务 | 144.35MB
学习教育 | 24.26MB
2023-11-08
系统工具 | 6.78MB
体育竞技 | 88.6MB
体育竞技 | 47.8MB
体育竞技 | 310.89MB
天正建筑2014绘制建筑物顶层平面图的操作教程
你们知道天正建筑2014怎样绘制建筑物顶层平面图吗?怎么样开启这项功能呢?对此感兴趣的用户可以随小编去下文看看天正建筑2014绘制建筑物顶层平面图的具体操作方法。
天正建筑2014绘制建筑物顶层平面图的操作教程
我们需要先打开天正建筑2014软件,并复制一份二层平面图,如下图所示
删除顶层没有的墙体、轴线、门、窗,删除完成后,如下图所示
然后我们修改楼梯间的墙高,修改完成后,如下图所示
接着我们修改建筑物四周的墙体参数,修改为女儿墙,修改完成后,如下图所示
再绘制楼板,绘制完成后,如下图所示
绘制楼梯间的楼板,绘制完成后,如下图所示
在命令行输入“3DO”,点击回车键,进入“受约束的动态观察模式”,然后就可以直观的看到自己绘制的顶层平面图,如下图所示
最后我们可以改变一下“视觉样式”,看一下自己绘制的顶层平面图;在“受约束的动态观察”模式下点击鼠标右键,选择“视觉样式”,点击“真实”,如下图所示
看完了上文为你们讲述的天正建筑2014绘制建筑物顶层平面图的具体流程介绍,大家是不是都学会了啊!
体育竞技
310.89MB
体育竞技
47.8MB
体育竞技
88.6MB
游戏辅助 | 4.5GB
2024-04-24
动作格斗 | 20GB
2024-04-23
角色扮演 | 3.2GB
2024-04-22
角色扮演 | 500MB
2024-04-22
休闲益智 | 30.17MB
2024-04-18
生活服务 | 144.35MB
2024-04-18
生活服务 | 144.35MB
2024-04-18
生活服务 | 144.35MB
2024-04-18
学习教育 | 24.26MB
2023-11-08
系统工具 | 6.78MB
2023-11-08
体育竞技 | 88.6MB
体育竞技 | 47.8MB
体育竞技 | 310.89MB